
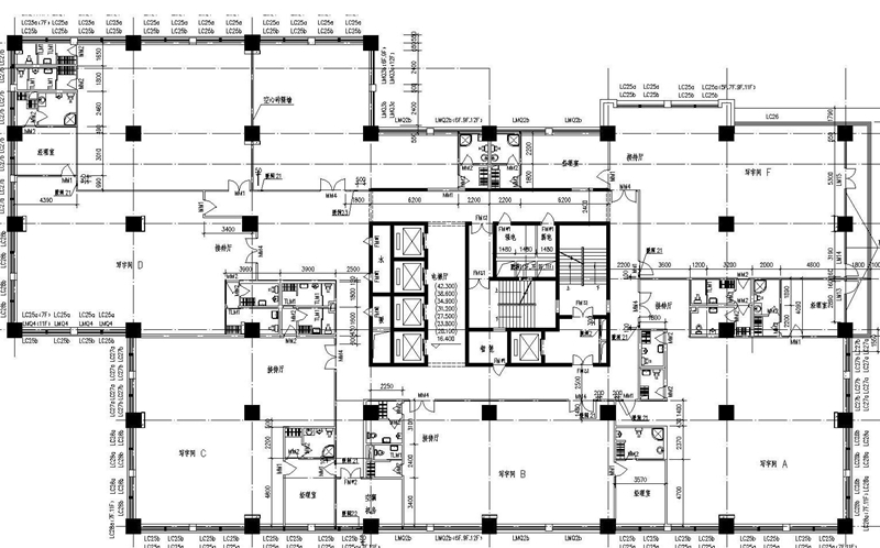
?天地源·杰座廣場
項目地址
西安市高新區唐延路 灃惠南路4號
咨詢電話
029-88390363
項目實景圖、效果圖展示
{
項目位置
掃描二維碼 | 了解更多
{
關注添加微信公眾號
關注添加微信公眾號






























陜公網安備 61019002002366號